model rumah minimalis beserta denahharuslah diutamakan supaya sesuai keinginan yang diinginkan nanti dalam pembangunan rumah minimalis.
Dalam membuat model rumah minimalis beserta denah harus lah memperhatikan hal-hal berikut ini supaya nantinya dalam berjalannya tahap pembangunan sesuai yang diharapkan. Berikut penjelasannya.
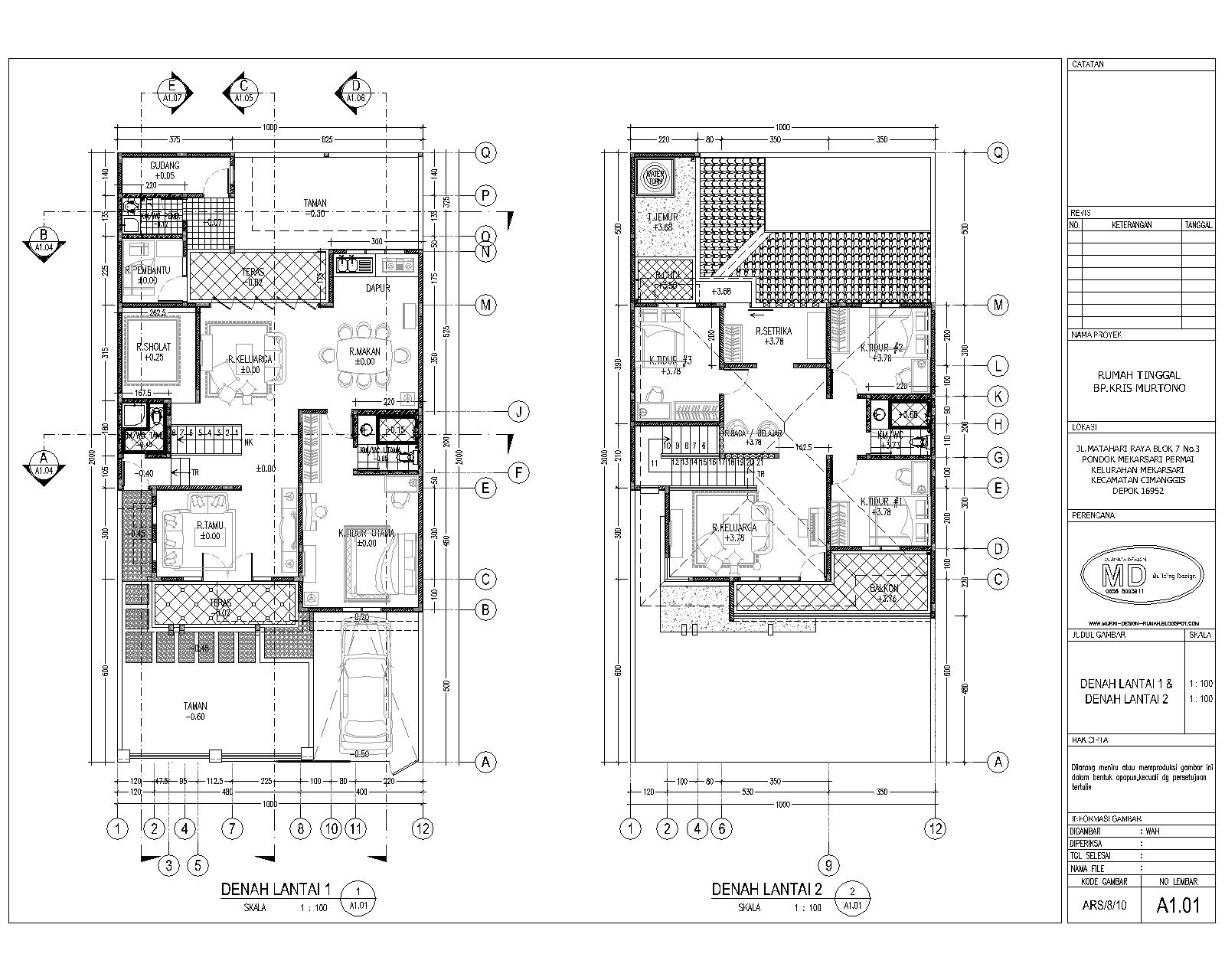
1. Dalam membuat sketsa rumah pada rumah minimalis harus diadaptasi dengan type dan luas rumah masing-masing alasannya ialah berbeda-beda.
2. Dalam sketsa rumah minimal harus memperhatikan dari segi interior menyerupai penggunaan atau penataan ruangan dan kamar, pencahayaan pada setiap kamar atau ruangan, penggunaan cat atau warna pada dinding, penggunaan furnitur dan perabotan, harus terdapat kamar mandi dan dapur, dan harus ada ventilasi atau sirkulasi udara yang cukup.
3. Sedangkan dari segi eksterior harus terdapat teras atau halaman, taman, garasi, pencahayaan yang cukup, penggunaan cat atau warna pada dinding luar rumah, dan pagar luar rumah.
4. Jika luas dan type rumah lebih besar dan bertingkat, sebaiknya anda sanggup menggunakan lantai dengan menambahkan penggunaan ruangan atau kamar, juga sanggup sebagai kawasan untuk menjemur pakaian, dan juga sanggup untuk kawasan menyimpan barang yang tidak digunakan atau barang yang terlalu banyak.
5. Ukuran perbandingan dalam membuat sketsa rumah harus dibentuk lebih detail dan menyerupai tampak aslinya supaya sanggup dilihat dengan mudah.
6. Jika anda kesulitan dalam membuat sketsa rumah, anda sanggup meminta teman anda untuk menggambar sketsa rumah anda atau juga sanggup anda menggunakan jasa arsitek rumah untuk menggambar sketsa rumah anda.
Demikian klarifikasi mengenai model rumah minimalis beserta denah yang sudah dijelaskan di atas, semoga sanggup bermanfaat bagi anda yang ingin membuat sketsa rumah minimalis sebelum melaksanakan pembangunan.



